Beckenham Place Park
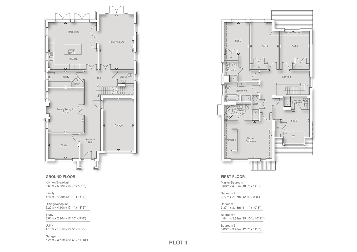
Marketing CGIs & Plans for an Arts & Crafts inspired development, located right on the edge of Beckenham Place Park in South-East London.
Marketing CGIs & Plans for an Arts & Crafts inspired development, located right on the edge of Beckenham Place Park in South-East London.