Cedar Green
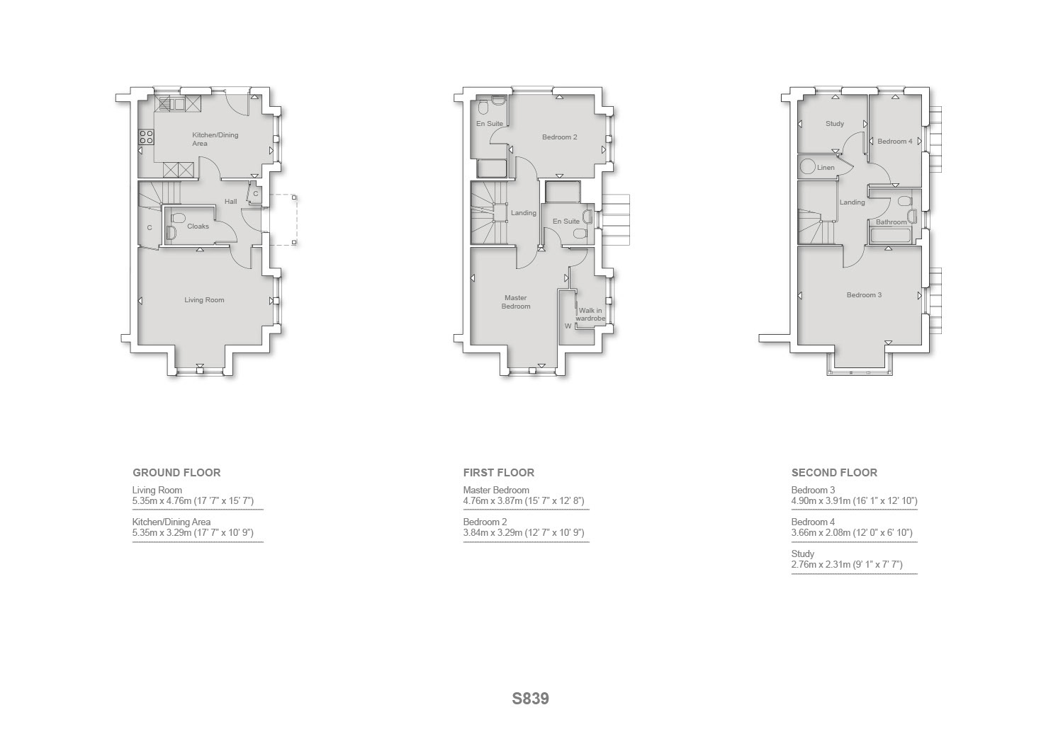
A set of house-type CGIs, floor plans and site layout plan produced for a regional housebuilder to market their latest development off-plan.
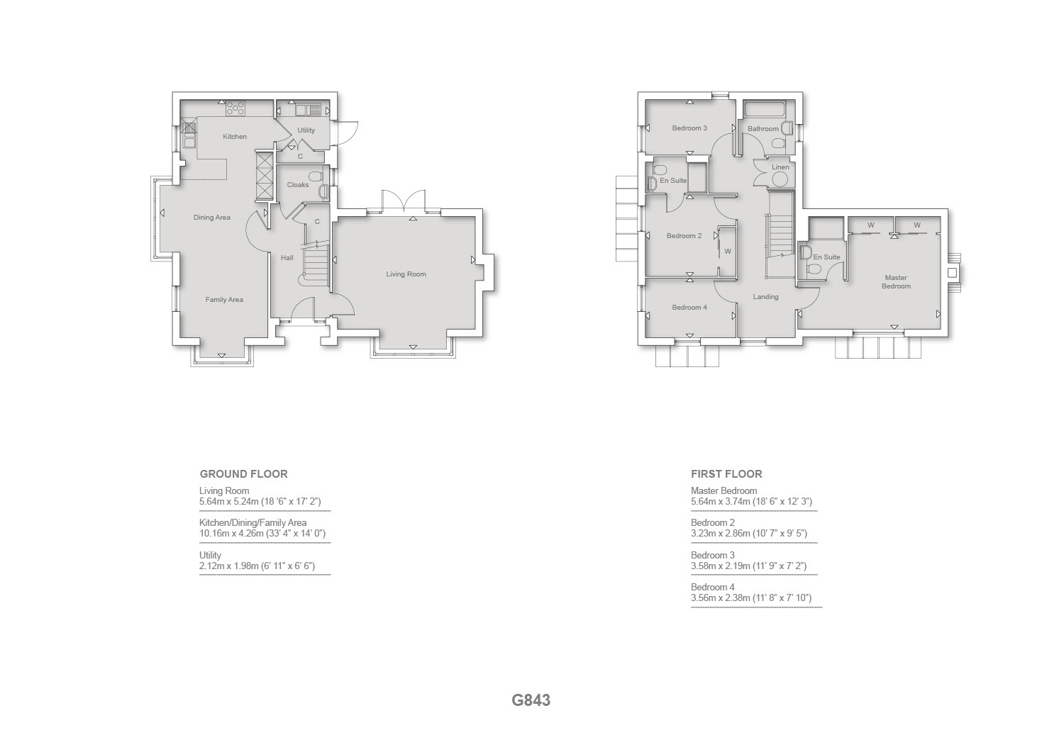
A set of house-type CGIs, floor plans and site layout plan produced for a regional housebuilder to market their latest development off-plan.