Work
Case Studies
Services
About
Contact
Work
Case Studies
Services
About
Contact
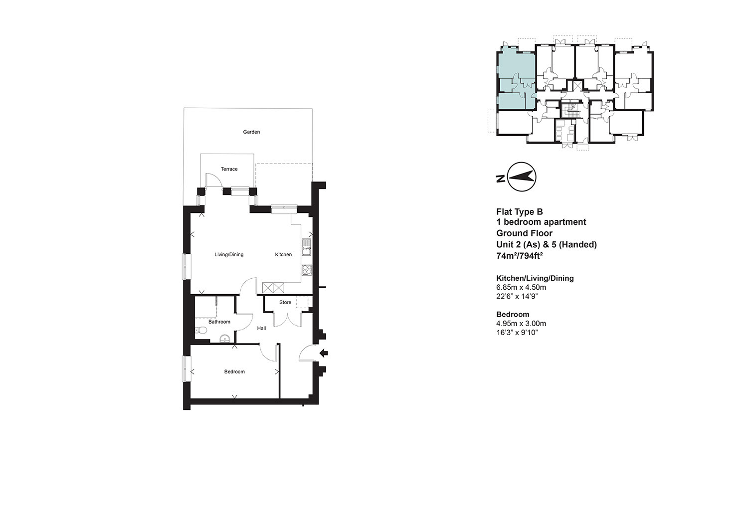
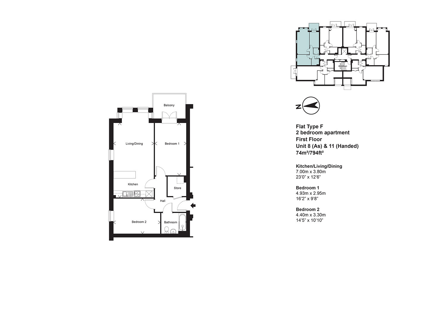
Hampton Road
Marketing CGI & Plans for a Shared Ownership housing scheme in West London.
↑
Back to Top