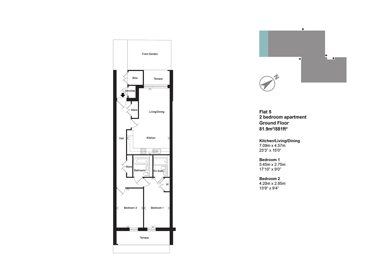
Longview Court
Marketing CGIs & Plans produced for a SharedOwnership scheme in Feltham, West London. The interior styling was developed by us to showcase the high specification contemporary design of the apartments, aimed at young professional buyers.